Architecture

Architectural Design & Technical Drawing Services in London

Bischell architecture is about capturing your vision and creating an aesthetically stunning environment with functionality built around you.

We do all of this while making sure you get the most value out of your budget, along with a seamless and stress-free process, where we collaborate together to combine your favourite ideas with our penchant for artistically beautiful design.

The Process

1

Free Initial Consultation

Our experts will visit you to discuss your project discover exactly what you’re looking for. We’ll learn about your tastes, ideas and inspirations to build up a picture of your dream result, whilst you can pick our brains to find out if Bischell is right company for you.

2

Defining the brief and checking feasibility

We’ll define your brief, take a photographic site survey and analyse your ideas. We’ll look at size, layout and legislative constraints to make sure that the project can go ahead without any hiccups. We also do a cost analysis to ensure that your budget is feasible whilst exploring ways to make your money stretch further.

3

Concept Design

Bischell designers will work with you to brainstorm ideas and create conceptual designs. We’ll take your vision and combine it with Bischell’s creative expertise to create simply stunning designs - packed with that “wow” factor - which are feasible, functional and fit your budget. We always encourage you to make as many suggestions as you like to ensure the final design is perfect.

4

Planning drawings & consents

We can assess if your project requires planning permission, and if so, create accurate 2D scale drawings to be sent to your local authority for approval. We handle this entire process for you, including any other consents required, with a 97% first-time acceptance rate.

5

Space Planning

This is the planning of how the design will utilise the space involved. This involves working with you to finalise the layout of all of the features of the design, including the placement of sockets, lights, switches and radiators, as well as kitchen/bathroom layouts and more. We always strive to achieve a perfect balance between functionality and breathable space.

6

Building regulations & engineering

Bischell ensures that all project plans meet the latest building regulations as standard, but in situations where building regulation approval is required, we can act on your behalf to produce and submit these plans to building control with all relevant paperwork included.

7

Construction plans & specifications

Bischell produces millimetre accurate construction plans with the pinnacle of precision. We show sizes, materials, fixtures, fittings and exactly how component parts fit together for a flawless finish.By leaving no stone unturned, it eliminates uncertainty and ensures a smoother build project. We also include detailed specifications of all materials – right down to the smallest nut and bolt.

Concept design drawings

This is where your ideas start to take shape. We take everything we’ve learned from you and inject some Bischell creativity to start forming innovative concept ideas. These drawings can then be picked apart and expanded on as we work together to form the basic designs which will be taken forward to the next stage. Take a look at our gallery for examples of concept design drawings.

 

Architectural Sketch.

3D modelling

3D models really help you to get a feel for how the 2D concept drawings would look in the 3D world. Complex architectural elements can be much better understood, whilst you can also get a great understanding of the general theme, the volume of space and how any furniture will look inside. This helps you to better visualise ideas to make any further changes. See examples of Bischell’s 3d modelling here.

3d bedroom modelling plans

3D virtual walkthroughs

This allows you to really absorb what it would feel like to step inside the finished result. You can walk around and look inside the 3D visualisation to explore every possible angle, so you know exactly how the space would look with your choice of design, layout and furniture. Advanced models can even show you how internal and external lighting would appear in each area.

 

3D photo realistic renders

With Bischell, it’s possible to get a life-like 3D render of your finished project before the first brick is even laid. With pixel-perfect 3D models, accurate textures and realistic lighting, it’s almost like having real photographs of the finished result to look at before you finalise any of your plans. This allows you to make inexpensive changes now instead of costly changes during the build phase.

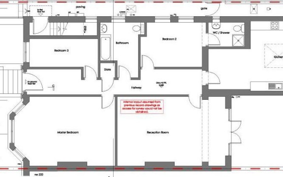
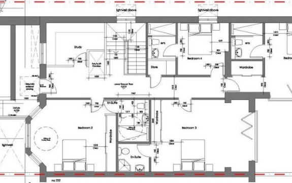
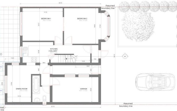
2D planning drawings

These formal 2D drawings are used as part of your application for planning permission (if it is required). Due to Bischell’s extensive experience in this area, we can produce all of the plans required, including front/rear/side elevations, section drawings, floor and roof plans, design and access statements, site plans, aerial surveys and more. See examples of Bischell’s 2D drawings.

 

multi level floor plans

3D floor plans

3D floor plans help you to better visualise the basic layout of the final result. Step into that extra dimension to explore the space, shape, floor coverings, furniture layout, wall textures and colour schemes. 3D floor plans help you to make better-informed design revisions and instantly get a more realistic understanding compared to the flat 2D plans.

Call or email us today

If you have a project you'd like to discuss, please get in touch. There's no obligation. Just give us a call or if you'd rather email, simply complete the form.

3D architectural animated movies

Bischell can create a photo-realistic animated movie which takes you on a life-like journey throughout the final result. Sit back and enjoy as you fly in and around rooms which are fully designed to your approved concept with stunning realism. Bring the project to life with a sense of real-world motion so you can get a real taste of living or working in the new environment.

Planning applications and consents

Bischell will submit all of the plans and paperwork to obtain planning permission on your behalf. We act as your agent to handle the entire process for you and can even meet with your local authority to answer any enquiries and make sure that you get full planning permission for your project. It’s one of the reasons why we have a 97% first-time approval rate.

Space planning

Space planning is where we take the concept design and plan out how it will utilise the available space in detail. This involves finalising many of the finer features, including the exact positions of sockets, lights, switches, radiators, drainage systems, kitchen/bathroom layouts, joinery designs and more.

 

Building regulation plans

These formal plans provide everything building control requires to grant building regulation approval. Your dedicated project engineer will create specifications to comply with all of the applicable building regulations – from part A to part P. Just like planning permission, we can submit all of the plans and handle the entire process on your behalf.

plans 1 a

Engineering plans

Bischell creates detailed engineering plans to assist with the build process, including 2D drawings, CAD annotation, structural specifications, structural calculations and more. This stage still allows you the opportunity to make any further amendments before final approval.

 

 

 

plans 3 a

Finishes, fittings and construction drawings

Choosing the right fittings and finishes is an integral part of how the final result will look. That’s why we can create mood boards and show you a selection of fixtures, textures, metals and stones so you can get a much better idea of how they look and feel before you make your final decisions.

Once the final design has been approved by you, our CAD technicians will create millimetre-perfect computer aided construction plans to give the build team everything they need to turn the project into reality with fine precision – right down to the smallest screw or nail.

See our gallery for examples of completed projects.

plans 2 a

Why Bischell?

An optional industry-leading lifetime guarantee

We'll give you a fixed price which won't budge

A guaranteed completion date or we pay you

We won’t stop until your project is 100% defect free

Bischell 360 Support

360° Support® for peace of mind every step of the way

Testimonials

  • As designers they are good, very good. But whilst they are talented in aesthetics, they have what so many of their ilk lack. They are thinkers. They are problem solvers. They can take complexity and deliver elegant yet simple solutions....

    John Dodds CEO at USEMETI Ltd

  • We contracted Bischell for our fairly large house renovation and I can honestly say that while their prices were comparatively higher, the service and professionalism is unparalleled. We had used a cheaper alternative on our first home and that turned...

    Benjamin Friedmann Vice President at WorldOne

  • Just wanted to thank all the team at Bischell for the incredible amount of hard work over the past 4 months. It's been quite a journey but I'm happy to be at the end of it now. Sorry to see...

    Dave Jones West Finchley – Barnet

Some of our clients

Sign up to the newsletter

Join over 1000+ people and get fortnightly design and construction tips and advice.

We guarantee 100% privacy. Your information will not be shared. Unsubscribe at any time with a single click

Bischell 360 Support

Based around six key pledges, it’s our promise to you to ensure rock-solid reliability and a seamless, hassle-free project